Nous avons tout d’abord réaliser des plans de maison sans avoir trouvé un terrain.
Nous avons commencer par dimensionner les pièces aux tailles et sur l’étage désiré (Nous avons obtenu une maison de 200 m2 sur 3 étages,Sous-sol, Rez, 1er et nous avons donc revu nos souhaits) et après différentes formes de maison L V W nous avons opté pour la forme cubique plus simple à réaliser et à aménagé. Vous trouverez ci-dessous nos croquis et esquisse des idées. (Ces croquis sont libre de droit pour une utilisation non commerciale, nous souhaiterions, connaître leurs utilisations éventuelles)
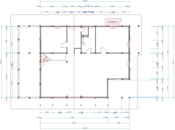
Sous-sol

Rez

Etage

Facade Nord

Facade FSud

Facade Est

Facade Ouest

Coupe

Sous-Sol Meublé

Rez Meublé

Etage Meublé

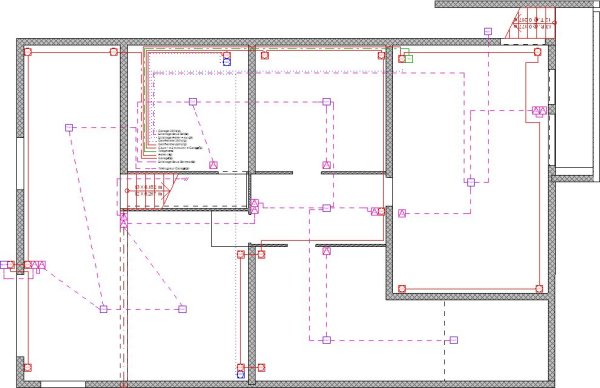
Sous-Sol Électricité

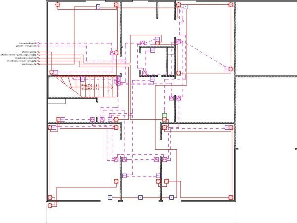
Rez Électricité

Etage Électricité

Poteaux Iso

Poteaux Dessus

Syntese

Fils
