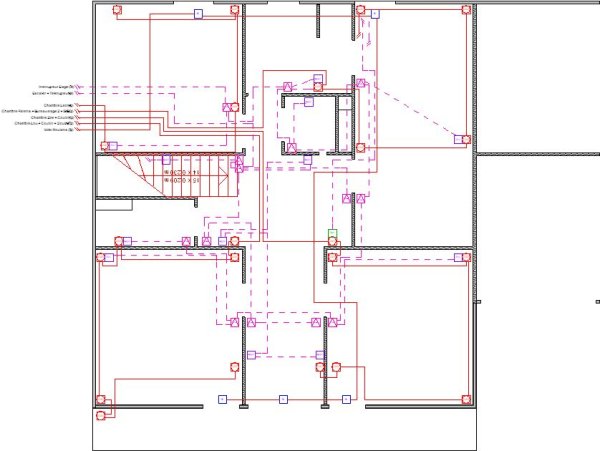
Nous avons réalisé toute l’électicité nous même. Nous avons demander à un de nos amis éléctricien de corriger les plans électrique que nous avions réalisé et après quelque correction de sa part, nous n’avions pas tenu compe qu’une prise ne peut recevoir que 2 fils (Branchement en série), nous avions fait nos plans qui aurrait marcher mais pas pratique à réalisé (Branchement en étoile).
- Plan éléctrique du Sous-sol

- Plan éléctrique du Rez

- Plans éléctrique de l’étage
